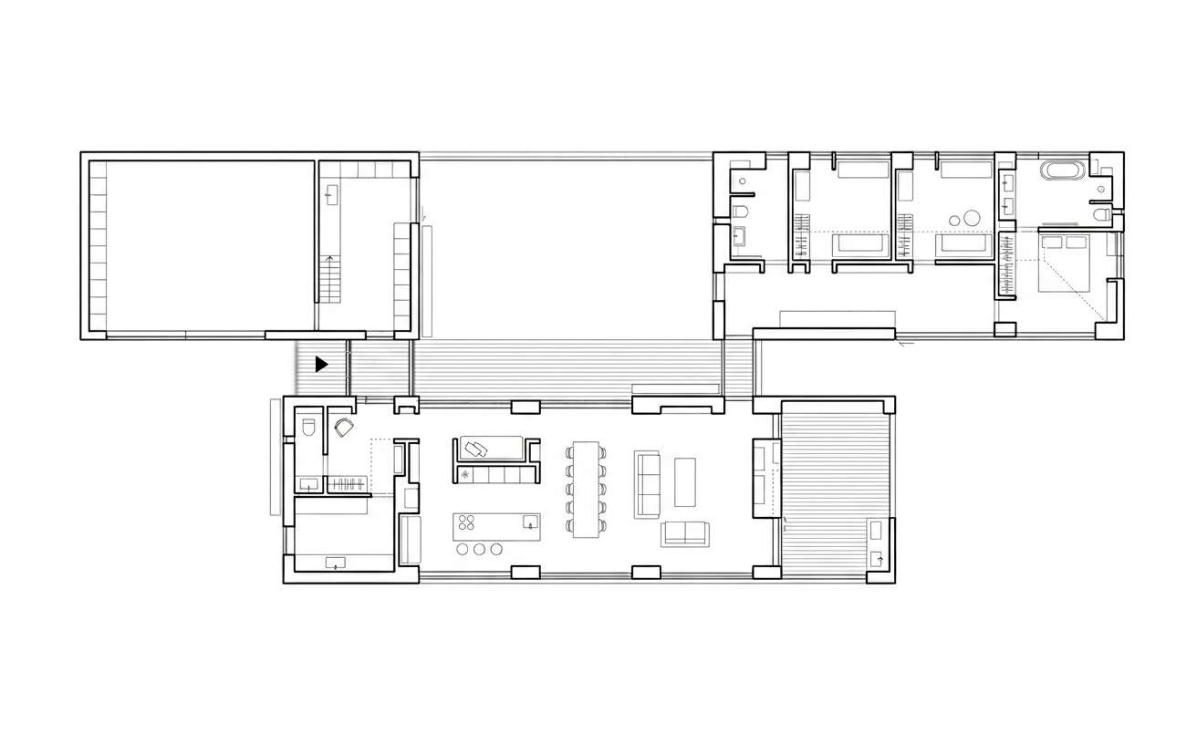
North Island House

Conceived as a series of pavilions sheltering an outdoor garden, this country home employs a courtyard typology to establish protected zones of living within an otherwise exposed context. The inward orientation fosters a calibrated relationship between architecture and landscape—balancing openness with shelter, and privacy with permeability.

Prince Edward County, ON | 2025 - ongoing

Ground Floor Plan

The house is comprised of three volumes, all single story, totaling 3,400 sq.ft and includes 3 bedrooms, 3 bathrooms, living, dining, covered porch, gallery, a separate studio and a garage.

Next
Next

Upstate House